Toggle navigation
Introduction
Selected Works
careers
Contact
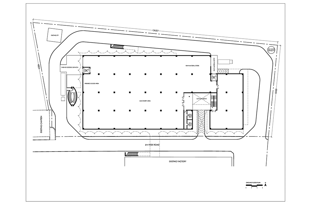
Ogara Factory
INFO
EXTERIOR VIEW
DRAWINGS
DRAWINGS