Toggle navigation
Introduction
Selected Works
careers
Contact
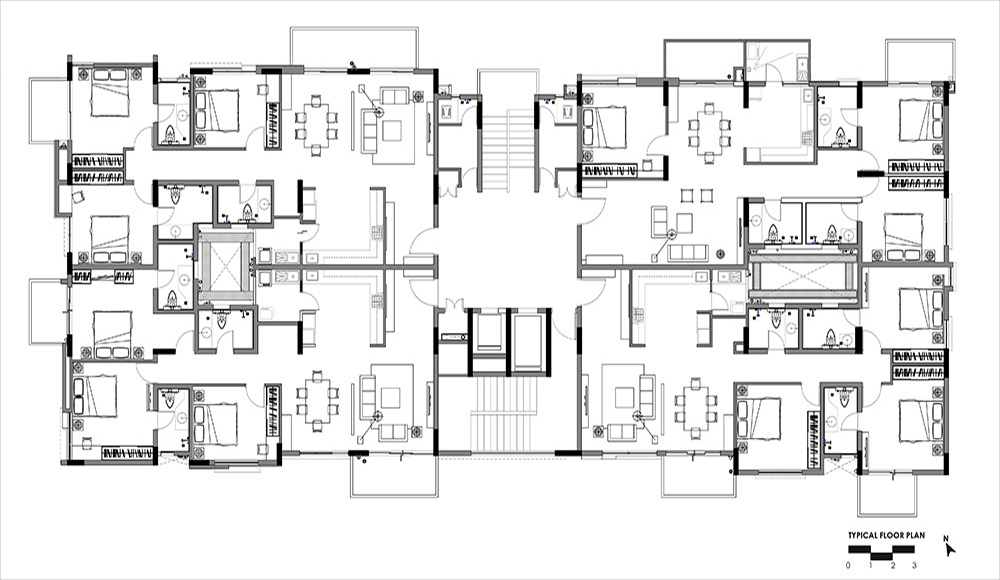
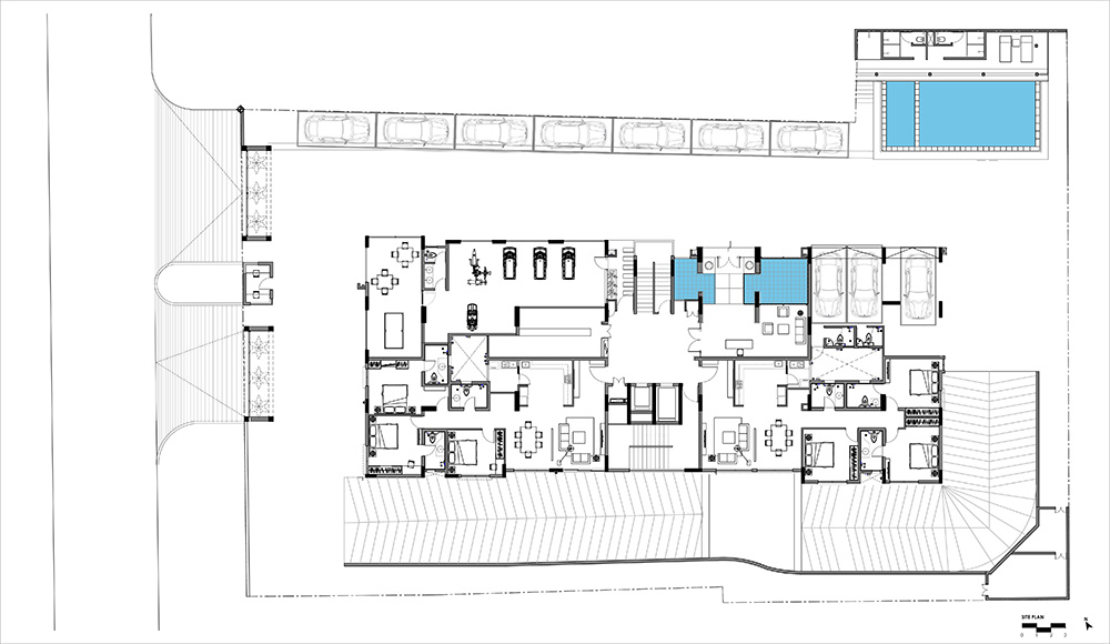
Murali Apartment
Dream Villee
INFO
EXTERIOR VIEW
INTERIOR VIEW
DRAWINGS
VIDEO
DRAWING
1
2
3