Toggle navigation
Introduction
Selected Works
careers
Contact
Aithal House
Amodhini Farm House
INFO
EXTERIOR VIEW
INTERIOR VIEW
DRAWINGS
MODEL PHOTOS
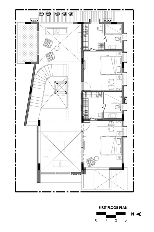
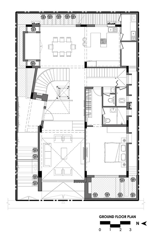
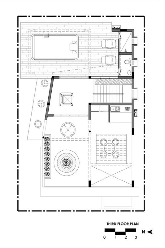
DRAWING
1
2
3
4
5
6