Toggle navigation
Introduction
Selected Works
careers
Contact
Nagesh Residence
Bhaskar Residence
INFO
EXTERIOR VIEW
INTERIOR VIEW
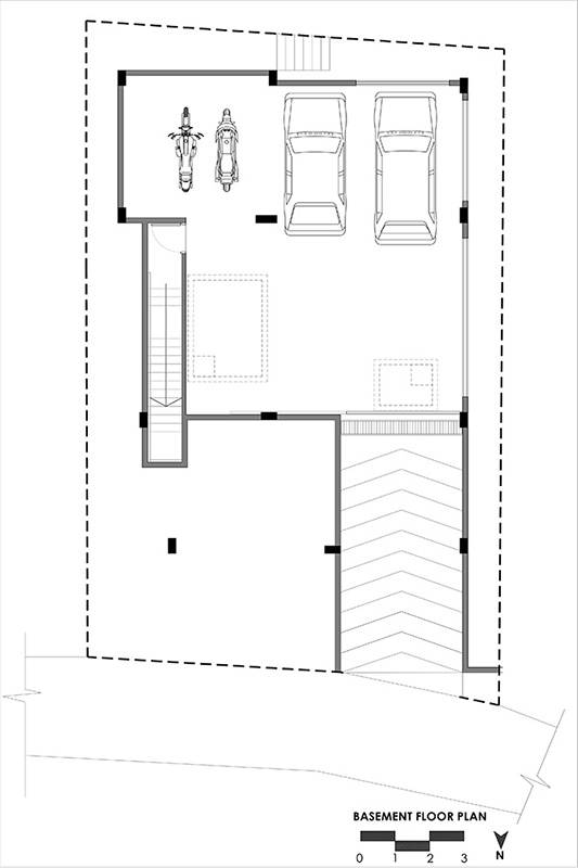
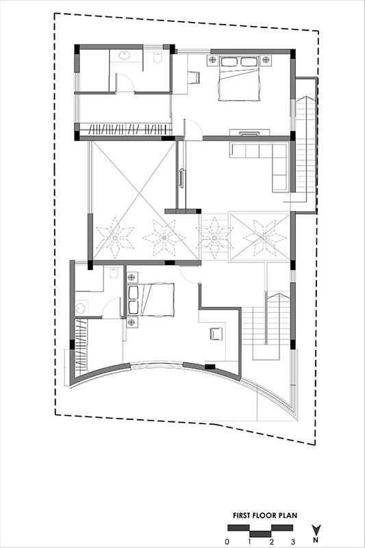
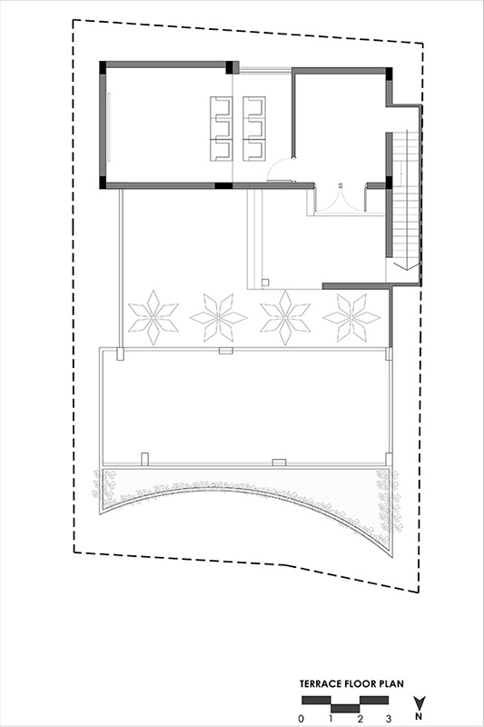
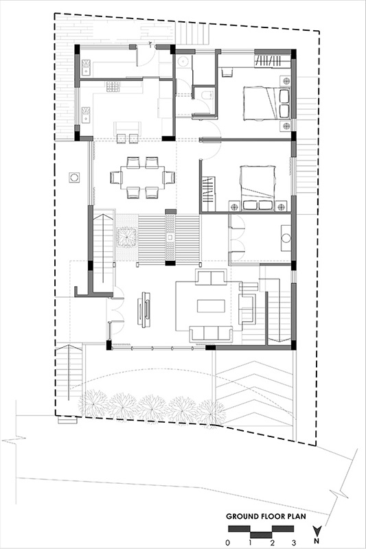
DRAWINGS
DRAWINGS
1
2
3
4
cssslider
by WOWSlider.com v8.7