Toggle navigation
Introduction
Selected Works
careers
Contact
Lakshmipathy Residence
Guruprasad Residence
INFO
EXTERIOR VIEW
INTERIOR VIEW
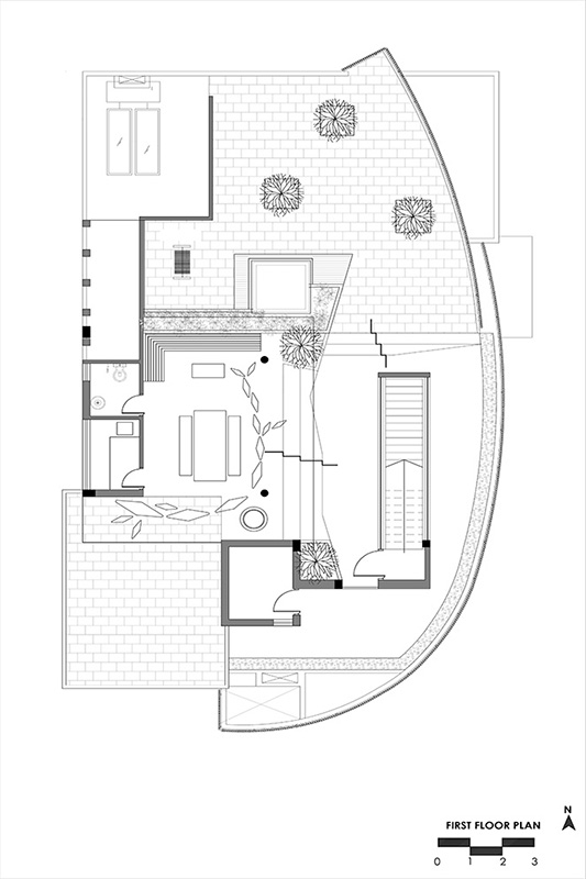
DRAWINGS
DRAWINGS
1
2
3
4