Toggle navigation
Introduction
Selected Works
careers
Contact
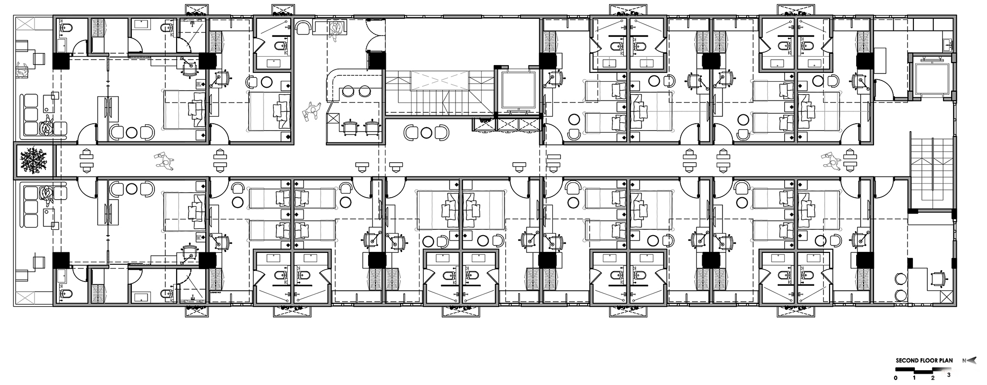
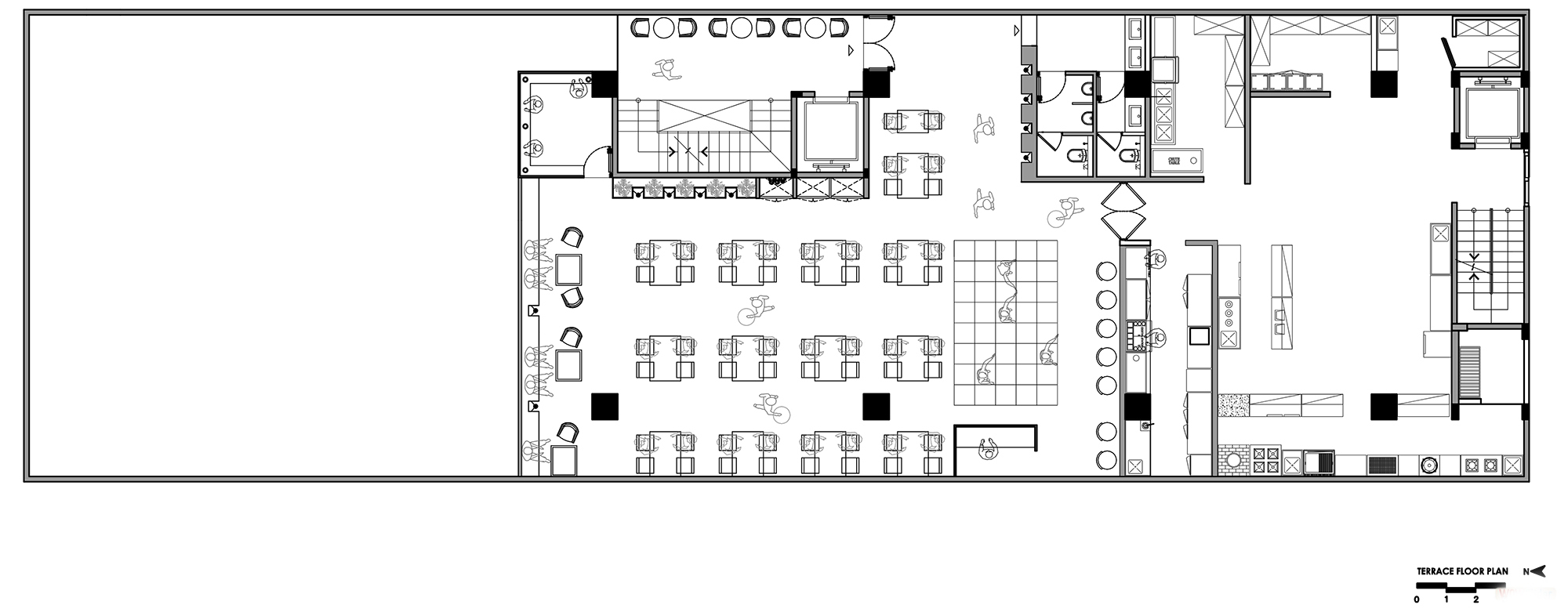
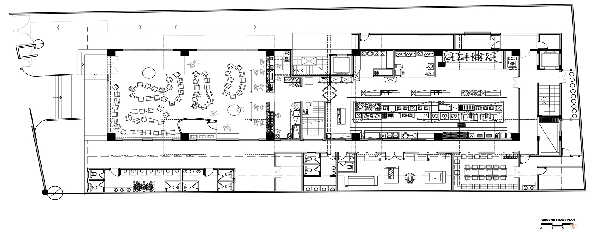
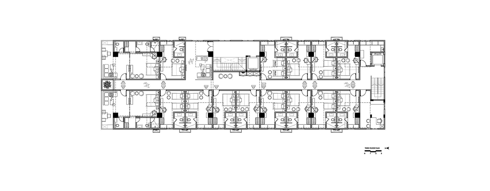
Sanctum Hotel
INFO
EXTERIOR VIEW
INTERIOR VIEW
DRAWINGS
CONSTRUCTION PHOTOS
DRAWING
1
2
3
4
5
6
7