Toggle navigation
Introduction
Selected Works
careers
Contact
Sukumar
INFO
EXTERIOR VIEW
INTERIOR VIEW
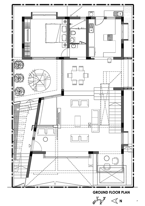
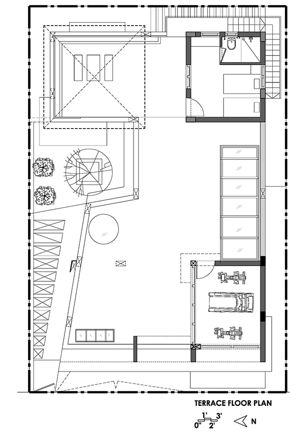
DRAWINGS
MODEL
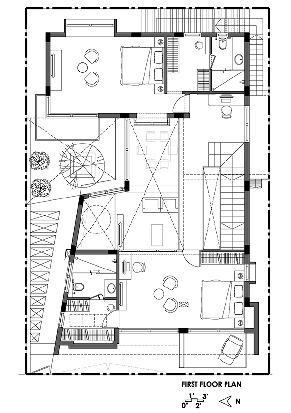
DRAWINGS
1
2
3
4