Toggle navigation
Introduction
Selected Works
careers
Contact
Amodhini Farm House
Lakshmipathy Residence
INFO
EXTERIOR VIEW
INTERIOR VIEW
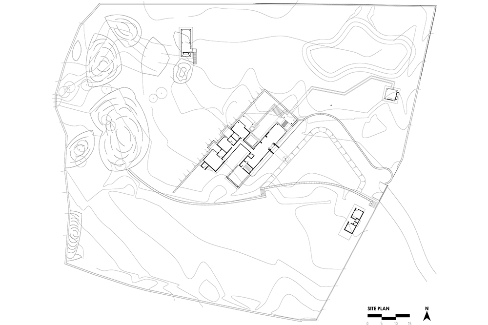
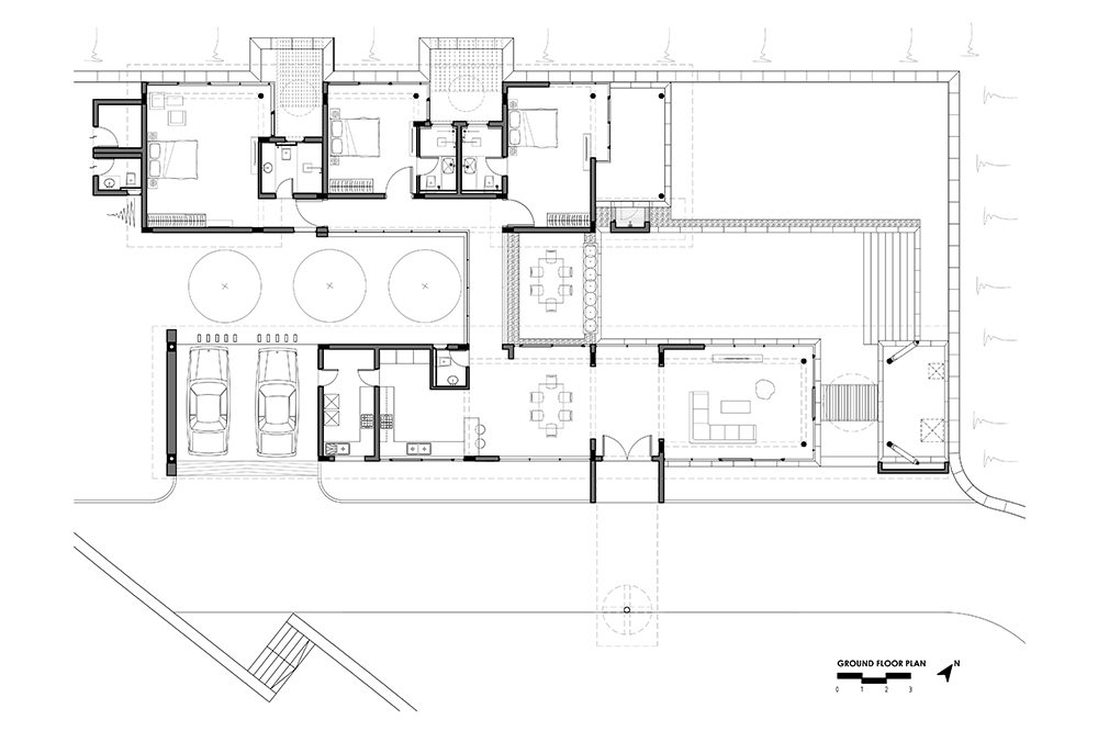
DRAWINGS
MODEL PHOTOS
DRAWINGS
1
2
3