Toggle navigation
Introduction
Selected Works
careers
Contact
DSS International School
Vidyaaashram Education
INFO
EXTERIOR VIEW
INTERIOR VIEW
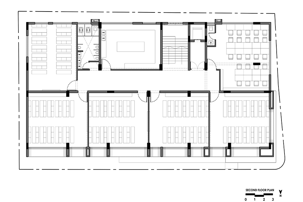
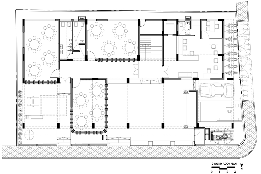
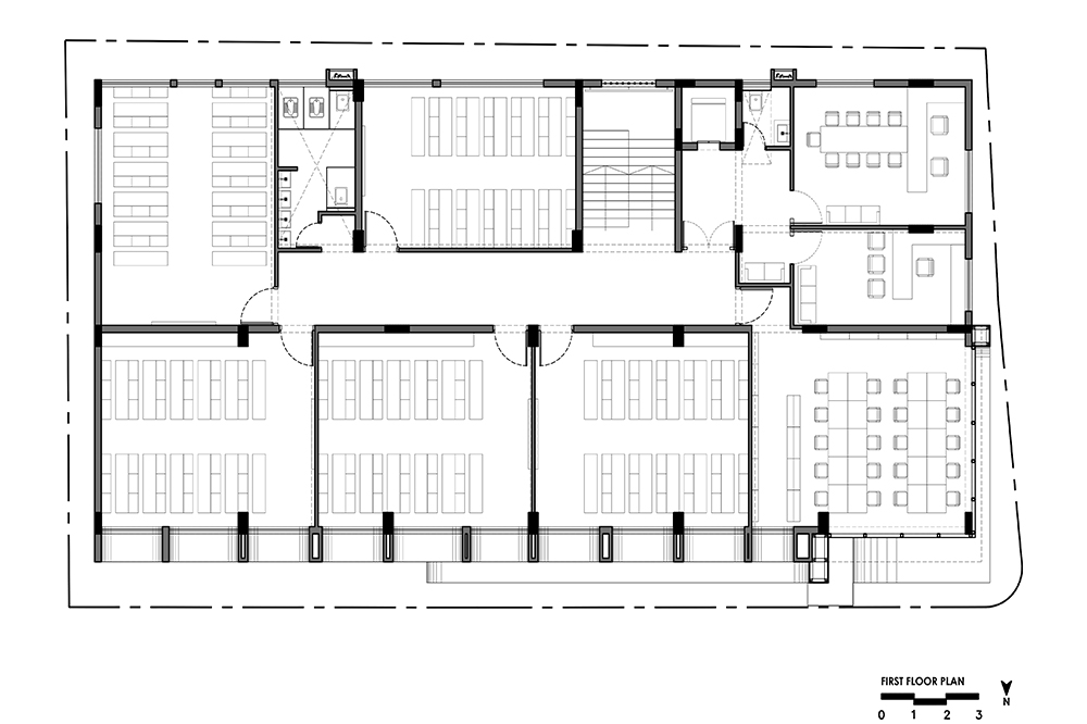
DRAWINGS
MODEL PHOTOS
DRAWINGS
1
2
3