Toggle navigation
Introduction
Selected Works
careers
Contact
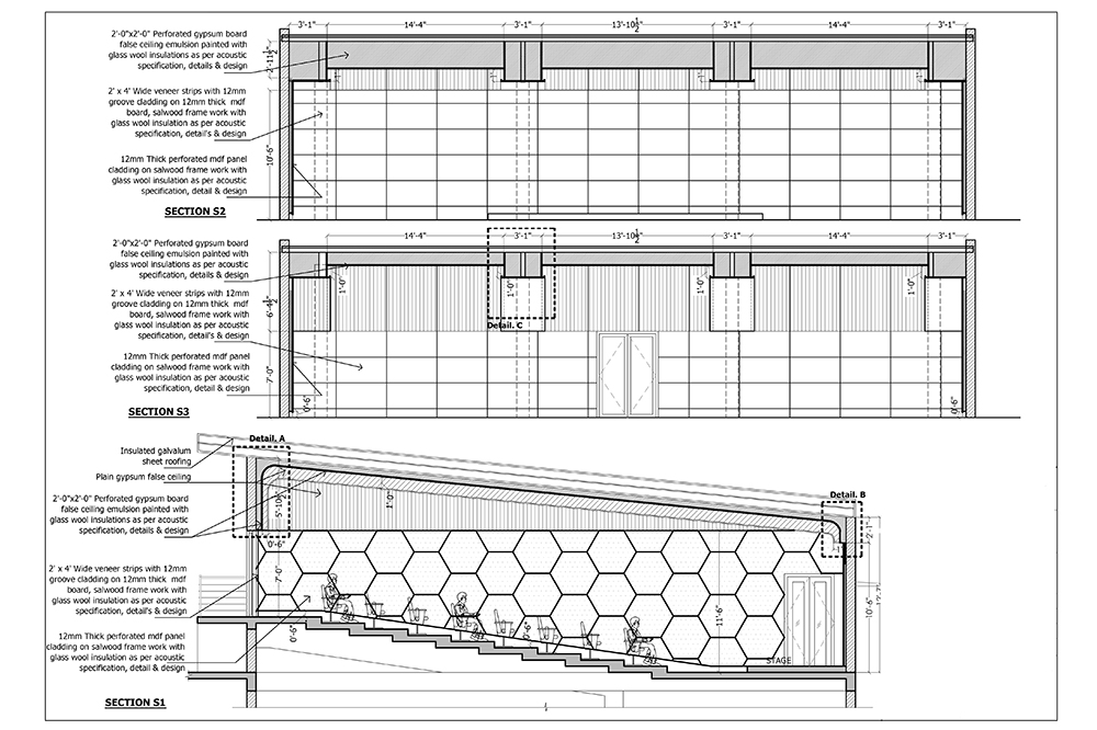
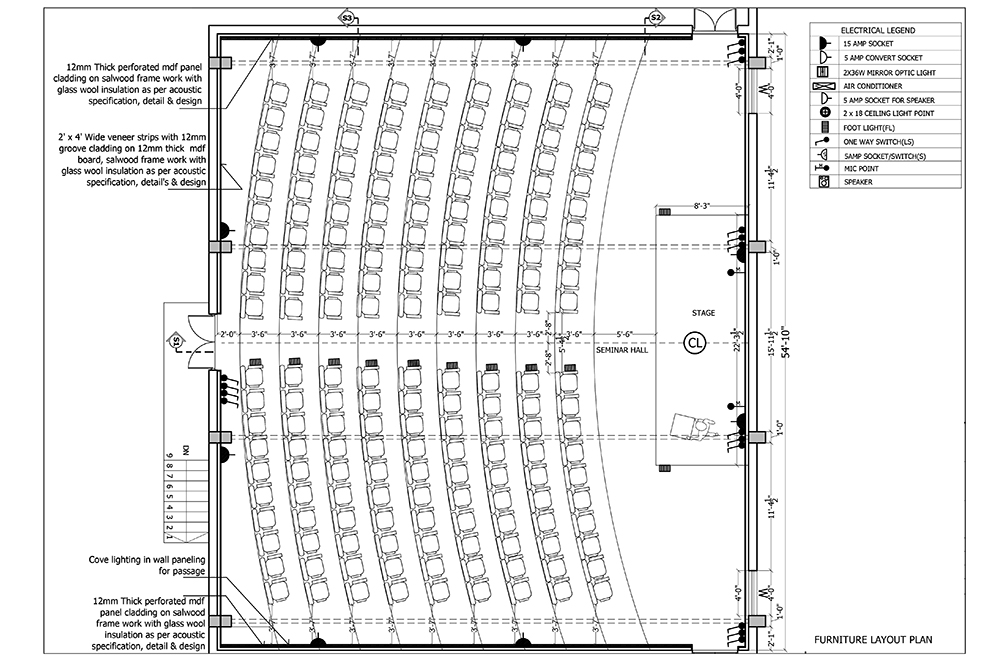
R V C E Civil Block, Seminar Hall
R V C E Basketball Court
INFO
INTERIOR VIEW
DRAWINGS
DRAWINGS
1
2
3