Toggle navigation
Introduction
Selected Works
careers
Contact
Bhaskar Residence
Sampath Kumar
INFO
EXTERIOR VIEW
INTERIOR VIEW
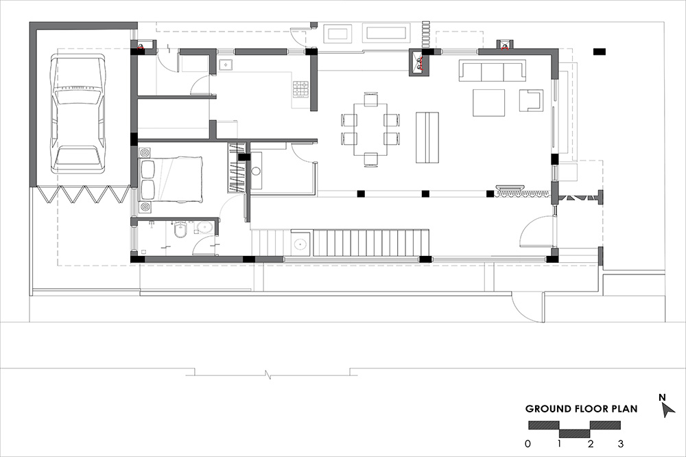
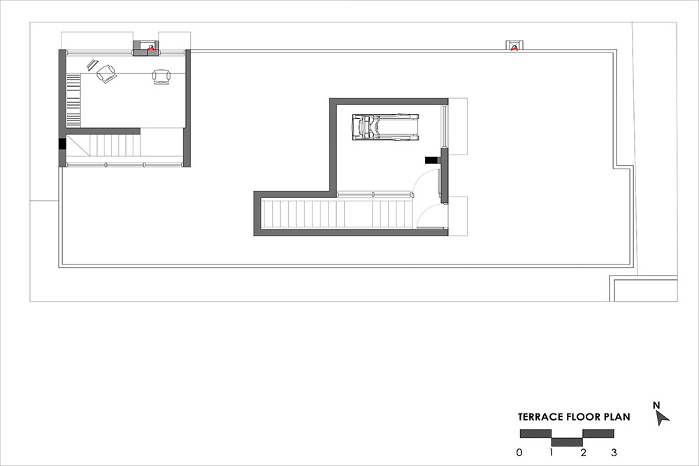
DRAWINGS
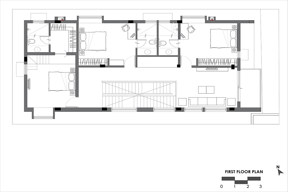
DRAWINGS
1
2
3