Toggle navigation
Introduction
Selected Works
careers
Contact
Vinay Kumar Residence
Prakash Residence
INFO
EXTERIOR VIEW
INTERIOR VIEW
DRAWINGS
MODEL
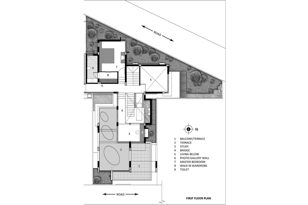
DRAWINGS
1
2