Toggle navigation
Introduction
Selected Works
careers
Contact
Sampath Kumar
SK Residence
INFO
EXTERIOR VIEW
INTERIOR VIEW
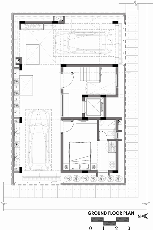
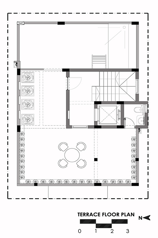
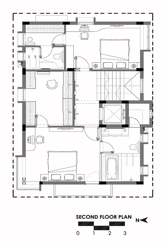
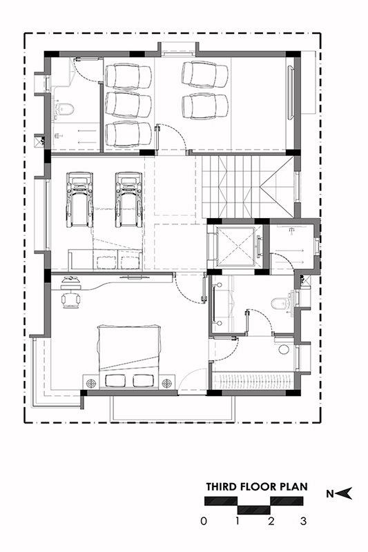
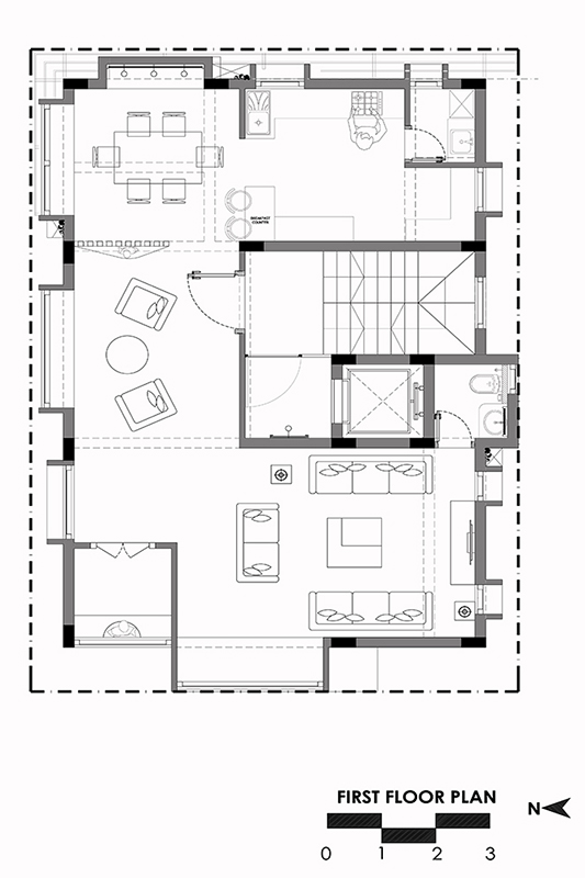
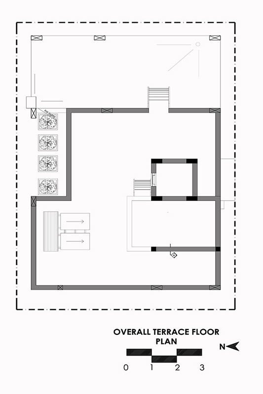
DRAWINGS
MODEL
DRAWING
1
2
3
4
5
6
7